Moradia Bi-Familiar em Caneças

420 000€

  • 10
  • 8
  • 2
  • Útil: 215m2
  • Bruta: 215m2
  • C.E.: D
  • Ano: 1971
  • Ref: 63861-MCCP62598

Localização

Lisboa, Odivelas, Ramada e Caneças, Caneças (Caneças)

VR Tour

Descrição

Moradia T8 (Dividida em 2 Casas) para Venda em Canecas - Oportunidade Única!

Apresentamos esta moradia com 2 casas independentes, localizada em Canecas, numa zona tranquila e sossegada, perfeita para quem procura um espaço amplo e com excelente exposição solar.

Com 112m² de área casa habitação, esta moradia oferece um grande potencial para diversos tipos de famílias ou até como investimento.

Estado de Conservação:
1º Piso: Já está pronta a habitar, oferecendo conforto imediato para quem procura um espaço pronto para morar.
Rés-do-chão: Requer cuidados e remodelação para atingir o seu máximo potencial, sendo uma excelente oportunidade para quem quer personalizar o espaço ao seu gosto.

Principais Características:
Área bruta: 112m2 + 112m²
Divisão: 2 casas independentes
Tipo de imóvel: Moradia T4 + T4
Ano de construção: 1971
Comodidades: Despensa, excelente exposição solar, e bom isolamento térmico e acústico
Certificado Energético: D
Localização: Zona sossegada e de fácil acesso, ideal para famílias ou quem deseja um local tranquilo para viver.
Características Adicionais:
Isolamento Térmico e Acústico: Garantindo um conforto extra durante todo o ano.
Boa Exposição Solar: Aproveite ao máximo as horas de sol com as amplas janelas e a orientação privilegiada.
Comodidades: A moradia inclui uma despensa e várias divisões que podem ser adaptadas às suas necessidades.

O preço de venda é de 1.698€/m², oferecendo uma excelente relação qualidade/preço para quem procura um imóvel com grande potencial de personalização e valor de mercado.

Aguardamos a tua visita!

Atributos

  • Isolamento Térmico
  • Isolamento Acústico
  • Local sossegado
  • Despensa
  • Boa Exposição Solar

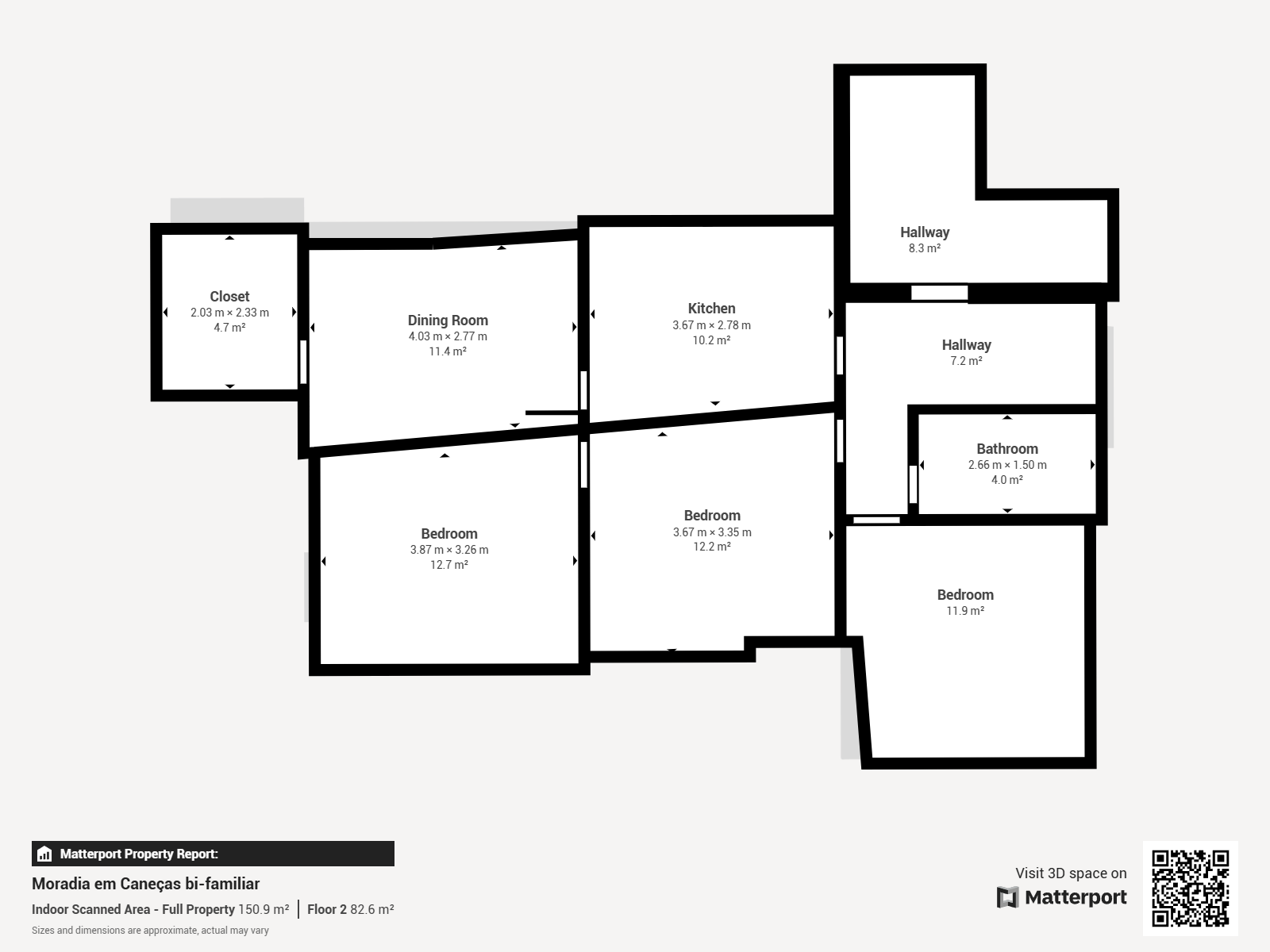
Divisões

Plantas

Nome do piso: 1 andar

Divisão Área Nota
WC
Quarto
Quarto
Quarto
Sala
Cozinha

Nome do piso: Piso 1

Divisão Área Nota
Quarto
Quarto
Quarto
Quarto
Sala
Cozinha
WC
Quarto